OUTSOURCING DESIGN

アウトソーシング設計のメリット
付加価値の高いコアな業務の人材育成にリソースを集中するために、それ以外の業務はすでに高いスキルと最新のノウハウを持っている外部の専門業者にアウトソーシングする方法があります。
アウトソーシングをうまく活用することで、市場の変化への対応がスピーディーかつ低コストで行うことが可能となります。
テクノ・ソニックのアウトソーシング設計は、単発物件から長期物件まで、お客様のニーズに合わせてご利用いただけます。又、各業務に付随しての、「現場への出張・調査」もお任せいただけます。
テクノ・ソニックでは、単にアウトソーシング設計だけでなく、貴社専属のエンジニアスタッフを弊社内で確保する事も可能です。
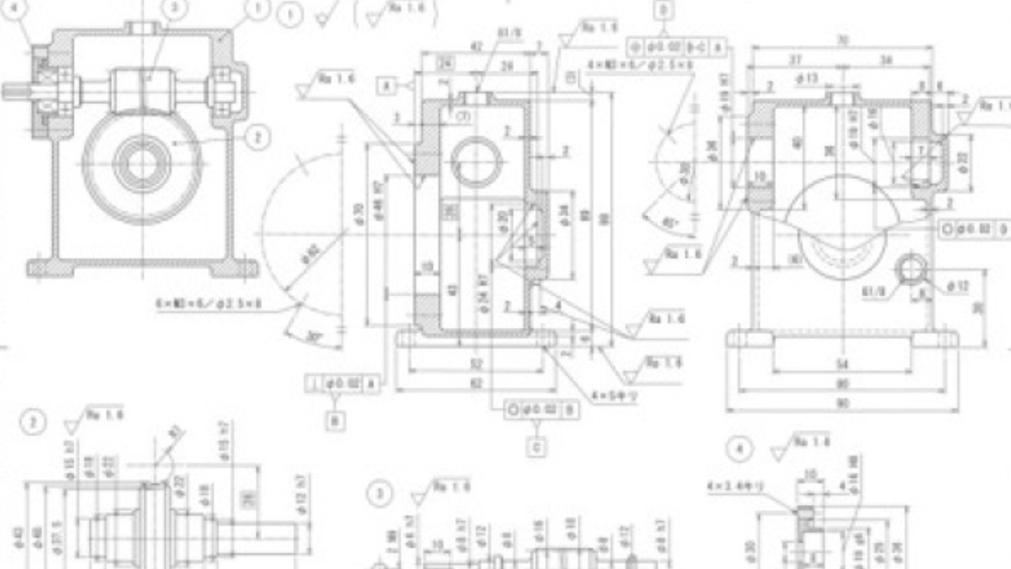
3D CAD MODELING
2D CADデータから3D CADモデルの作成 ⇔ 3D CADモデルから2D CAD図面の作成 など (Solid Works / iCAD / Plant 3D / etc )
1時間 / 2,800円



2D CAD TRACE
紙図面からの2D CADデータへの変換や2D CADデータの変更・修正、別ソフトからの図面化業務など (Auto CAD / etc)
1時間 / 2,200円



アウトソーシング2D CAD設計(1時間単価)
OUTSOURCING DESIGN | 2,800円 | 2.900円 | 3,000円 |
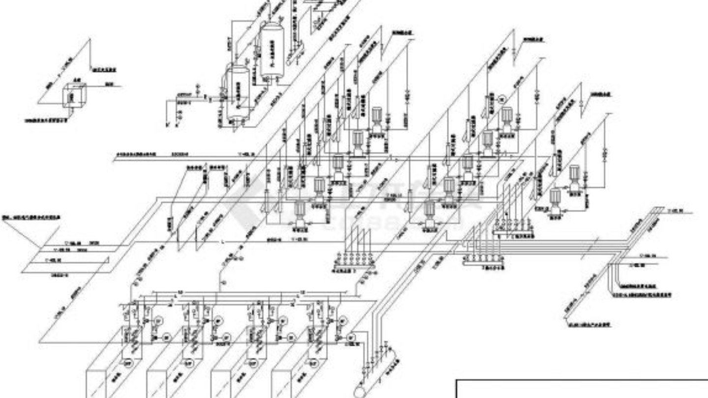
▲ Part Drawing, ▼ Arrangement Drawing. |
部品図 | 施工図 | 組立図 |
▲ Foundation Drawing, ▼ Sistem Drawing. |
配置図 | アイソメ図 | 配管図 |
Bright ideas, nice design. |
基礎図 | 系統図 | |
● ● ● ● ● |